Bildstrecke 21.04.2011
Der Redakteur Sebastian Redecke beim Layout. Gerne hätte er auf mehr Seiten über diese Straße berichtet.
Sebastian Spix
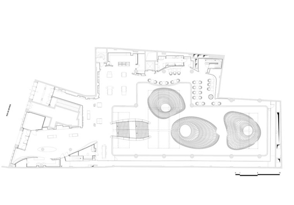
Rue de Sèvres No. 17: Der neue Flagshipstore von Hermès in einem ehemaligen Schwimmbad (1935).
Sebastian Redecke
Das Unternehmen edler Luxusgüter entschied sich bei der Ausstattung der Galerie für Korbstühle.
RDAI
Weiter die Rue de Sèvres: Links der Eingang ins ehemalige Schwimmbad, rechts der Place Le Corbusier und der Square Boucicaut.
Sebastian Redecke
Rue de Sèvres No. 33: Durchgang zur Kirche Saint-Ignace. Hier befand sich das Atelier Le Corbusier.
Sebastian Redecke
Blick vom Square Bouciaut auf den Neubau aus den frühen 70er Jahren. Hier standen zuvor einzelne Stadthäuser des Jesuitenklosters. Dahinter war Corbusiers Atelier.
Sebastian Redecke
Der Innenhof mit der Kirche von Saint-Ignace. Im ersten OG. des Klosters war in einem über 40 Meter langen Gang das Atelier.
Sebastian Redecke
Ein Stück weiter entlang der Rue de Sèvres befindet sich das ehemalige Hôpital Laënnec. Ein Gebäude an der Straße wird abgerissen.
Sebastian Redecke
Links: Eine Schautafel mit neuen Luxuswohnbauten auf dem Areal. Rechts: Der Fellah-Brunnen soll erhalten bleiben.
Sebastian Redecke
Permis de Démolir: die Abrisserlaubnis für verschiedene Gebäude des Krankenhauses.
Sebastian Redecke
Eine Schautafel der Investoren mit der Kapelle des Krankenhauses, die für die neuen Eigentümer als Veranstaltungsort umgenutzt werden soll.
Sebastian Redecke
Sebastian Redecke trifft das Ehepaar La Rochefoucauld: Sie protestieren gegen die Entweihung der Kapelle, in der ihre Vorfahren beerdigt wurden.
Sebastian Redecke
Projekt der Architekten Valode Pistre auf dem Krankenhausareal an der Rue de Sèvres. Im Vordergurnd der Brunnen und die Metrostation.
Valode Pistre
Die Rückseite des Neubauprojekts von Valode Pistre, im Vordergrund die Altbauten des Krankenhauses.
Valode Pistre
Rue de Sèvres: Rechts, das Areal des Krankenhauses. Im Hintergrund, der Postbankneubau.
Sebastian Redecke
100 Meter weiter: Die neue Glasfassade der Postbank von den Architekten Chaix Morel.
Sebastian Redecke
Blick aus der Chefetage der Postbank auf die glatte Fassadenhaut; im Hintergrund der Invalidendom.
Sebastian Redecke
Luftbild auf die Rue de Sèvres: Links das Arel der Postbank. Rechts oben: das ehemalige Krankenhaus Laënnec.
Das Wichtigste der Woche. Dazu: aktuelle Jobangebote, Auslobungen und Termine. Immer freitags – kostenlos und jederzeit wieder kündbar.

