Bildstrecke 30.07.2013
1930, unmittelbar nach dem Barcelona Pavillon, entwirft Mies van der Rohe das Gebäude für einen Golfclub in Krefeld (Animation von Robrecht en Daem).
®robbrechtendaem
... Perspektiven und Detailzeichungen dienten Robbrecht en Daem architecten als Grundlage für ihre interpretierende Umsetzung.
®robbrechtendaem
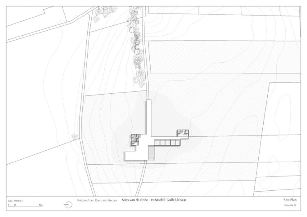
Da das ursprünglich vorgesehene Grundstück inzwischen als Naturschutzgebiet ausgewiesen ist, ...
®robbrechtendaem
... wird das Modell rund 300m nach Osten, auf die zweite Kuppe des Krefelder Egelsberges verschoben.
®robbrechtendaem
Die topographischen Bedingungen sind mit dem allseitig leicht abfallenden Gelände nahezu identisch zum originalen Standort.
®robbrechtendaem
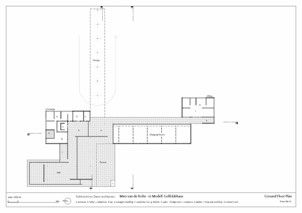
Grundlage für die aktuelle Planung ist der sogenannte "endgültige" Entwurfsgrundriss mit typischer, freier Raumorganisation ...
®robbrechtendaem
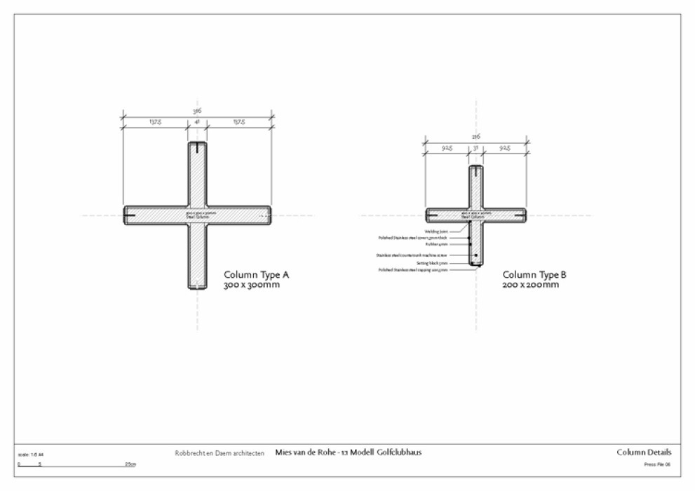
... wird von sieben kreuzförmigen, mit Edelstahl ummantelten Stützen getragen.
Thomas Hick, ®robbrechtendaem
Die spiegelnden Stützen nehmen als einziges Bauteil direkten Bezug auf die Mies´sche Materialästhetik ...
... die restliche Umsetzung erfolgt als Stahlskelett im 7 x 7m-Raster, eingestellte Wände ...
®robbrechtendaem
Teilweise unbehandelt, teilweise weiß lasiert, vermittelt die sichtbare Maserung eine Ahnung ...
Thomas Hick, ®robbrechtendaem
Der bewusst gewählte, modellhafte Zustand des temporären Gebildes vermeidet eine vermeintliche Authentizität ...
Marc De Blieck, ®robbrechtendaem
Noch bis zum 27. Oktober 2013 in Krefeld zu sehen:
"MIES 1:1 Das Golfclub Projekt - Ein begehbares Architekturmodell"
Thomas Hick, ®robbrechtendaem
Noch bis zum 27. Oktober 2013 in Krefeld zu sehen:
Thomas Hick, ®robbrechtendaem
Das Wichtigste der Woche. Dazu: aktuelle Jobangebote, Auslobungen und Termine. Immer freitags – kostenlos und jederzeit wieder kündbar.

