Mehr Museum – open call
Ein erster und vier dritte Preise: ein eindeutiges Ergebnis im prominenten Wettbewerb für die Erweiterung des Finnischen Nationalmuseums in Helsinki
Text: Stock, Wolfgang Jean, München
Mehr Museum – open call
Ein erster und vier dritte Preise: ein eindeutiges Ergebnis im prominenten Wettbewerb für die Erweiterung des Finnischen Nationalmuseums in Helsinki
Text: Stock, Wolfgang Jean, München
Noch vor zwanzig Jahren waren viele Fachleute skeptisch, ob Helsinki wieder zu einem bedeutenden Platz der zeitgenössischen Architektur werden könne. Doch seit ihrem Status als Europäische Kulturhauptstadt 2000 hat sich die finnische Kapitale erstaunlich entwickelt. So entstanden mehrere beispielhafte Bauten für die Gemeinschaft, darunter die neue Universitätsbibliothek (Bauwelt 28–29.2015). Daneben wurde der grundlegende Umbau von früheren Hafenanlagen vorangetrieben, einschließlich der Förderung von neuartigen Wohnmodellen (Bauwelt 18.2016). Selbst touristisch kann Helsinki inzwischen punkten. Weil auch die Museen mit wachsenden Besucherzahlen konfrontiert sind, wurde vor einem Jahr der Wettbewerb für die Erweiterung des Finnischen Nationalmuseums ausgelobt, aus dem Ende 2019 das Helsinkier Büro JKMM als Sieger hervorging.
Die Aufgabe war aus zwei Gründen besonders anspruchsvoll. Zum einen ist das Museum, das 1916, ein Jahr vor der finnischen Unabhängigkeit eröffnet wurde, ein Hauptwerk der Nationalromantik, die sich im Widerstand gegen die „Russifizierung“ des Landes ausgebildet hatte. Doch trotz seiner traditionellen Materialien ist das von den Architekten Herman Gesellius, Armas Lindgren und Eliel Saarinen für einen Wettbewerb entworfene Ensemble ein moderner Funktionsbau mit zwei Innenhöfen. Zum anderen liegt das Museum in jenem Bereich von Helsinki, der für die Finnen das Herz ihrer kulturellen und politischen Identität darstellt. Wie Perlen reihen sich zu beiden Seiten der breiten Mannerheimstraße auch architektonisch herausragende Bauten. Den Anfang bilden das 2018 eröffnete, ebenfalls von JKMM entworfene Amos Rex Museum und das Kiasma Museum für moderne Kunst von Steven Holl (Bauwelt 10.1998). Darauf folgen das monumentale, 1931 bezogene Parlamentsgebäude sowie die Musikhalle und die international gerühm-te Zentralbibliothek „Oodi“ (Bauwelt 5.2019). Dem Nationalmuseum gegenüber liegt schließlich der große Komplex der 1975 vollendeten Finlandia Halle von Alvar Aalto.
Vorbildliches Verfahren
Finnland ist im europäischen Vergleich noch immer ein Paradies für offene Wettbewerbe. Auch bei dieser zweistufigen Konkurrenz waren nicht nur Architekten aus der Europäischen Union und benachbarten Staaten zugelassen, sondern – für Finnland typisch – alle Bürger aus diesen Ländern. Wie sorgfältig die 185 Einreichungen behandelt wurden, dokumentiert das 42-seitige illustrierte Protokoll der Jury, das ins Internet gestellt wurde. Selbst die vielen Entwürfe, die bei der ersten Sichtung ausschieden, wurden nach einem Kriterienkatalog einzeln bewertet. Intensiver beschäftigte sich das Preisgericht mit den Vorschlägen in einer „oberen“ und „mittleren“ Klasse. Für die zweite Stufe des Wettbewerbs wählte es schließlich fünf Entwürfe als „Preisklasse“ zur weiteren Bearbeitung aus. Im Protokoll lassen sich die Verbesserungen bei den Überarbeitungen bis in Details hinein nachlesen. Mehr Transparenz ist wohl kaum möglich.
Der Wettbewerb dient dem Zweck, das hermetisch wirkende Museum für heutige Anforderungen weiterzubauen. Dazu gehören ein neuer, einladender Haupteingang sowie Flächen und Räume, wo Veranstaltungen wie etwa Performances unabhängig vom Museumsbetrieb stattfin-den können. Das Haus soll über seinen kulturellen Auftrag hinaus zu einem Ort der gemeinschaftlichen Begegnung werden. Deshalb war im Raumprogramm ein Restaurant gewünscht und ein „höheres Profil“ für den Kassen- und Informationsbereich. Der vorgesehene Bauplatz ist der große, von einer Mauer aus der Ursprungszeit gefasste Garten des Museums.
Markanter Rundbau
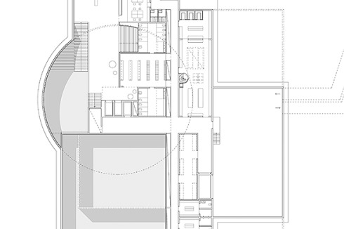
Der Entwurf „Atlas“ von JKMM, einem noch immer relativ jungen Büro, das bislang fast fünfzig Wettbewerbe gewonnen hat, überzeugte die Jury sowohl städtebaulich als auch funktional. Samuli Miettinen, der projektleitende Architekt von JKMM, hat die Grundidee erläutert: Zum einen entsteht die Erweiterung unabhängig vom Altbau, zum anderen wird der historische Garten so weit wie möglich respektiert – eine Position, wie sie in Varianten auch bei den anderen Teilnehmern der Preisgruppe festzustellen ist. JKMM schlagen für den neuen Haupteingang eine große Öffnung in die Mauer an der Mannerheimstraße. Unmittelbar dahinter erhebt sich als Eingangsgebäude ein markanter, allseitig verglaster Rundbau mit einem auskragenden Dach von etwa 40 Metern Durchmesser. Die Scheibe des Betondachs, das sich innen zum Festkern hinab wölbt, versteht sich als zeitgenössischer Kontrast zur historischen Steinmauer. Der Rundbau nimmt die Eingangshalle auf, das Restaurant sowie zwei Treppenan-lagen zu den beiden unterirdischen Geschossen. Durch die Verglasung der Eingangsebene erhält die „Promenade architecturale“ der breiten Treppen viel Tageslicht. Im niedrigeren Zwischengeschoss findet die funktionale Anbindung an das historische Gebäude statt, wobei die neue Haupthalle mit den Servicebereichen als „Gelenk“ dient. Eine weitere Treppe führt von der Halle in den kleinen Innenhof des Altbaus, der von einem Glasdach überspannt wird. Das tiefer liegende große Ausstellungsgeschoss, das auch für Veranstaltungen zu nutzen ist, schiebt sich aus dem Rundbau unter den Garten.
Kritische Stimmen
Das Siegerprojekt wird in Finnland jedoch nicht einhellig begrüßt. Heftige Kritik äußert etwa die Architekturhistorikerin Riitta Nikula. Sie bemängelt am Eingangsgebäude von JKMM, dass die „fliegende Untertasse“ durch ihre Höhe das historische Stadtbild beschädigen würde. Ihr Favorit ist der Entwurf „Asuuri“ des Berliner Büros Bruno Fioretti Marquez, der die historische Mauer zu einem raumhaltigen Volumen erweitert und deshalb ein „freundlicher Partner“ des mächtigen Altbaus wäre. Sie bezweifelt aber ohnehin, ob das Projekt realisiert wird, da der finnische Staat alle möglichen Kosten streichen möchte.
Offener zweiphasiger Wettbewerb
1. Preis (80.000 Euro) JKMM Arkkitehdit, Helsinki
ein 3. Preis (28.500 Euro) Bruno Fioretti Marquez, Berlin
ein 3. Preis (28.500 Euro) Rainer Mahlamäki, Helsinki
ein 3. Preis (28.500 Euro) Laidun-design, Pyhämaa,
LPR-arkkitehdit, Turku
ein 3. Preis (28.500 Euro) PES-Arkkitehdit, Helsinki
1. Preis (80.000 Euro) JKMM Arkkitehdit, Helsinki
ein 3. Preis (28.500 Euro) Bruno Fioretti Marquez, Berlin
ein 3. Preis (28.500 Euro) Rainer Mahlamäki, Helsinki
ein 3. Preis (28.500 Euro) Laidun-design, Pyhämaa,
LPR-arkkitehdit, Turku
ein 3. Preis (28.500 Euro) PES-Arkkitehdit, Helsinki
Jury
Riitta Kaivosoja (Kulturministerium), Juhani Kostet (Denkmalpflege), Elina Anttila (Nationalmuseum), Helena Hirviniemi (Architektin), Tomi Nikander (Architekt), Janne Prokkola (Stadt Helsinki), Mikko Aho (Stadt Helsinki), Jaakko Blomberg (Placemaker), Jyrki Tasa (Architektenkammer), Jaana Tarkela (Architektin)
Riitta Kaivosoja (Kulturministerium), Juhani Kostet (Denkmalpflege), Elina Anttila (Nationalmuseum), Helena Hirviniemi (Architektin), Tomi Nikander (Architekt), Janne Prokkola (Stadt Helsinki), Mikko Aho (Stadt Helsinki), Jaakko Blomberg (Placemaker), Jyrki Tasa (Architektenkammer), Jaana Tarkela (Architektin)
Auslober
Finnisches Denkmalpflege-Amt, Finnisches Nationalmuseum und Staatliche Flächen-Verwaltung
Finnisches Denkmalpflege-Amt, Finnisches Nationalmuseum und Staatliche Flächen-Verwaltung







0 Kommentare