Bauwelt

Sozialwohnungsbau „Illa Glòries“ in Barcelona


Die Plaza de les Glòries war jahrelang ein Verkehrsknotenpunkt. Nun ist sie ein Stadtpark und an ihrem Rand entstand einer der größten Sozialwohnungsbauten Barcelo-nas. Mehrere Architekturbüros waren für die Einzelhäuser dieser „Illa Glòries“ am Werk. Vivas Arquitectos und Pau Vidal entwickelten eine ruhige, feinsinnige Laubengangtypologie.


Text: Aguiriano Aizpurua, Inés, Barcelona


  • Bilderliste
    • Social Media Items Social Media Items

    Der Wohnblock Illa Gloriès liegt nördlich der alten Markthalle am neuen Park. Gebäudeteil C realisierten Vivas und Pau Vidal. Foto: José Hevia

    • Social Media Items Social Media Items
    Der Wohnblock Illa Gloriès liegt nördlich der alten Markthalle am neuen Park. Gebäudeteil C realisierten Vivas und Pau Vidal.

    Foto: José Hevia

  • Bilderliste
    • Social Media Items Social Media Items

    Foto: José Hevia

    • Social Media Items Social Media Items

    Foto: José Hevia

  • Bilderliste
    • Social Media Items Social Media Items

    Zum Park hin ist das Ensemble zwei Geschosse höher. Ab Etage fünf ist der zuvor straßenseitig geführte Laubengang innenliegend, zum Hof.
    Foto: José Hevia

    • Social Media Items Social Media Items
    Zum Park hin ist das Ensemble zwei Geschosse höher. Ab Etage fünf ist der zuvor straßenseitig geführte Laubengang innenliegend, zum Hof.

    Foto: José Hevia

  • Bilderliste
    • Social Media Items Social Media Items

    Foto: José Hevia

    • Social Media Items Social Media Items

    Foto: José Hevia

  • Bilderliste
    • Social Media Items Social Media Items

    Foto: José Hevia

    • Social Media Items Social Media Items

    Foto: José Hevia

  • Bilderliste
    • Social Media Items Social Media Items

    Foto: José Hevia

    • Social Media Items Social Media Items

    Foto: José Hevia

  • Bilderliste
    • Social Media Items Social Media Items

    • Social Media Items Social Media Items

  • Bilderliste
    • Social Media Items Social Media Items

    • Social Media Items Social Media Items

  • Bilderliste
    • Social Media Items Social Media Items

    • Social Media Items Social Media Items

  • Bilderliste
    • Social Media Items Social Media Items

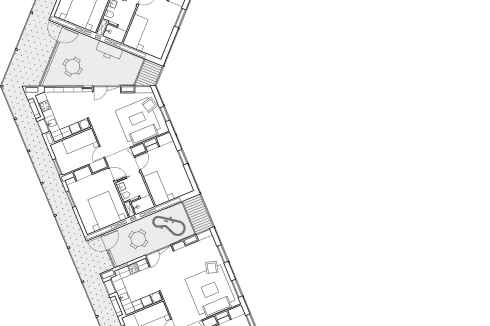
    Grundriss EG

    • Social Media Items Social Media Items
    Grundriss EG

  • Bilderliste
    • Social Media Items Social Media Items

    Regelgeschoss 1.–4. OG

    • Social Media Items Social Media Items
    Regelgeschoss 1.–4. OG

  • Bilderliste
    • Social Media Items Social Media Items

    Regelgeschoss 5.–9.OG

    • Social Media Items Social Media Items
    Regelgeschoss 5.–9.OG

  • Bilderliste
    • Social Media Items Social Media Items

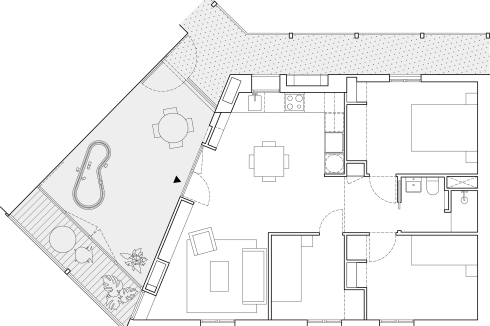
    Jede Wohnung kann neben einer eigenen kleinen Loggia auch Freiräume nutzen, die dem Laubengang angeschlossen sind. Diese Räume teilen sich die Nachbarn, und sie dienen der Klima­tisierung.

    • Social Media Items Social Media Items
    Jede Wohnung kann neben einer eigenen kleinen Loggia auch Freiräume nutzen, die dem Laubengang angeschlossen sind. Diese Räume teilen sich die Nachbarn, und sie dienen der Klima­tisierung.

  • Bilderliste
    • Social Media Items Social Media Items

    • Social Media Items Social Media Items

  • Bilderliste
    • Social Media Items Social Media Items

    • Social Media Items Social Media Items

Die Plaza de les Glòries in Barcelona sieht aus wie neu: Die Pflastersteine, die frisch gepflanzten Bäume, die neue Straßenbahnlinie. Und am südwestlichen Ende des Platzes: die Sozialwohnungen „Illa Glòries“. Auf dem Platz, der im Entwicklungsplan für das Stadtviertel Eixample aus dem 19. Jahrhundert als Zentrum der Stadterweiterung konzipiert wurde, begegneten sich drei Hauptverkehrsadern: Gran Vía, Diagonal und Meridiana. Seit den neunziger Jahren dominierte eine riesige Ringstraße den Raum. Die starke Präsenz der Infrastrukturen verhinderte, dass die angrenzenden Gebiete zu den lebendigen Orten werden konnten, als die sie gedacht waren. Die Bahn, die Fabriken, der Straßenverkehr und die Restflächen machten die Gegend wenig einladend – abgesehen von einigen Ausnahmen, etwa einer historischen Markthalle. Der Charakter dieses strategisch wichtigen Orts zwischen den Stadtteilen Eixample, Poble Nou und Sant Martí hat sich im Laufe der Zeit entsprechend den Bedürfnissen und Prioritäten gewandelt, wobei die jüngsten Maßnahmen, die auf den Wettbewerbsgewinn von Agence Ter & Ana Coello folgten, die aktuellen Herausforderungen annehmen: der Klima- und der Wohnungskrise Kontra zu geben.

Von „no-man’s land” zu Plaza

Das 2014 begonnene Umbauprojekt bietet der Stadt einen neun Hektar großen Park mit Einrichtungen für verschiedene Zwecke, reorganisiert den Verkehr, indem es dem Auto weniger Bedeutung beimisst, und beinhaltet im Wohnblock “Illa Glòries” 238 öffentlich geförderte Wohneinheiten – das größte derartige Projekt in der Stadt. Dieser Block, den Cierto Estudio konzipierte, besteht aus vier Gebäuden (A, B, C, D). Sie wurden an die vier im Wettbewerb um den Block erstplatzierten Teams vergeben. Gebäude C haben Vivas Arquitectos in Zusammenarbeit mit Pau Vidal entworfen.
Die Illa Glòries befindet sich am östlichen Ende des Rasters von Eixample, grenzt an die alte Markthalle und bildet einen Abschluss zum neuen Park. Ihre Geometrie unterscheidet sich von der typischen Blockstruktur, indem sie aus zwei hohen Kubaturen besteht, die durch zwei nied­rigere Teile verbunden sind, die einen zentralen Hohlraum überspannen. Die Gebäude variieren in Höhe und Geometrie, um sich dem Sonnenstand anzupassen und Durchgänge zwischen den Innenhöfen sowie eine Beziehung zum öffentlichen Raum zu ermöglichen. Ihre Form passt sich auch dem Verlauf einer historischen Straße an, die den Block einst diagonal durchschnitt.
Den Komplex haben alle beteiligten Teams auf der Grundlage gemeinsamer Entscheidungen in Bezug auf Verkehrsführung, geometrische Schnittpunkte und kompositorische Einheit entwickelt. Die Höhe der Stockwerke und der Sockel sind einheitlich, jedoch unterscheiden sich die Fassaden durch ihre Materialität und Komposition. Dies verleiht dem Komplex einen gewissen Realismus und mindert seine Gleichförmigkeit, sodass er trotz seiner Zusammengehörigkeit eine kompositorische Vielfalt aufweist, die für die Häuserblocks einer gewachsenen Stadt typisch ist.

Die Stadt weiterbauen

Wenn man sich dem Gebäudeteil C nähert, fällt sofort sein monochromes Erscheinungsbild in einer zarten Palette von drei gelblichen Beigetönen auf. Es handelt sich zwar nicht um eine auffällige Farbe, jedoch eine, die sich im Sozialwohnungsbau eher selten findet. In Kombination mit der regelmäßigen Anordnung der Öffnungen und vertikalen Elemente verleiht sie dem Gebäude eine zeitlose Ausstrahlung, die an die klassischen Gebäude von Eixample erinnert. Architekt César Vivas gesteht, dass die Farbe nicht die erste Wahl des Teams war, im Büro sei man mit dem Ergebnis aber sehr zufrieden.
Das Gebäude fügt sich mit einer flexiblen Typologie mit doppelter Ausrichtung ein. Die 67 Wohnungen sind über Laubengänge erschlossen und verteilen sich auf neun, beziehungsweise elf Stockwerke auf der Parkseite – wodurch eine klare Kante zum Freiraum entsteht. Das Gebäude ist so gestaltet, dass es im Verhältnis zum Rest des Komplexes die bestmögliche Raumqualität bietet. Aus diesem Grund dreht sich die Typologie ab dem fünften Stockwerk und nutzt die Abwesenheit des Nachbargebäudes für eine bessere Sonneneinstrahlung und Aussicht, dafür wurden die Gänge nach innen verlegt. Konstruktiv handelt es sich um ein System aus Betonpfeilern und -decken, die Fassadenelemente sind weitgehend vorgefertigt.

Ein relatives Maß von Nähe

Der Weg von der Straße ins Innere des Wohnhauses erfolgt durch eine Abfolge von Räumen mit gemeinschaftlicher Funktion: Vom Innenhof mit Ladenlokalen und Begrünung gelangt man zu den Treppenhäusern und von dort zu einem Zwischenraum, der jeder Wohneinheit als zusätzlicher Freiraum vorgelagert ist. Dieser Bereich, der mit den Laubengängen, den Wohnungen und der Außenterrasse verbunden ist, erfüllt mehrere Zwecke: Für das Gebäude schafft er Lücken in der Fassade, die Querblicke ermöglichen und ihre Massivität aufbrechen. Gleichzeitig bringt er Licht und Luft in den Innenhof. Für die Wohnungen dient die Zone, wie der Vorgarten eines Einfamilienhauses, dazu, den Austausch und die nachbarschaftliche Gemeinschaft zu fördern – ein Ziel, das Vivas Arquitectos in all ihren Mehrparteienhäusern verfolgen. Darüber hinaus sind alle Freiräume bioklimatisch aktiv: Im Winter speichern sie Sonnenenärme und im Sommer tragen sie durch Querlüftung zur Kühlung bei.
Die Wohnungen in Haus C verfügen über zwei oder drei Zimmer und sind damit gut für unterschiedlichen Nutzergruppen geeignet. Die flexible Aufteilung der Räume wird etwa durch außen positionierte Stützen ermöglicht oder auch, indem der Wohnraum aus einem halböffentlichen und einem eher privaten Teil besteht. Die Oberflächen und Materialien lassen das Haus nahbar wirken und verhalten sich so neutral, dass den künftigen Nutzerinnen Freiheit bei der Gestaltung und Belegung der Räume bleibt.
In den oberen Stockwerken des Gebäudes fällt ins Auge, wie privilegiert die Lage ist: Von der gemeinschaftlichen Dachterrasse aus öffnet sich ein weiter Blick über die Stadt, zugleich ist die Lage selbst zentral. Seine Position am Ende des Rasters von Eixample und neben dem Park verleiht diesem öffentlich geförderten Wohngebäude eine besondere Bedeutung in dem neu erschlossenen Gebiet. Die Ausformulierung der baulichen Lösung beweist Engagement für architektonische Qualität – die sowohl dem Wohlbefinden der neuen Bewohnerschaft als auch dem Rest der Stadt zugutekommt. Bald ziehen die ersten Mieter ein – und mit ihnen wird das Haus seine Gestalt finden.



Fakten
Architekten Vivas Arquitectos & Pau Vidal, Barcelona
Adresse Gran Via de les Corts Catalanes, 832, L'Eixample, 08013 Barcelona, Spanien


aus Bauwelt 24.2025
Artikel als pdf

0 Kommentare


loading
x

25.2025

Das aktuelle Heft

Bauwelt Newsletter

Das Wichtigste der Woche. Dazu: aktuelle Jobangebote, Auslobungen und Termine. Immer freitags – kostenlos und jederzeit wieder kündbar.