Bauwelt

Sozialwohnungsbau in Hilversum


Mehr als Spielerei, vielmehr durchdachte Bezugnahme und ausbalancierte Proportionen heben ein von Monadnock geplantes Gebäude im nordholländischen Hilversum aus dem beigen Einheitsbrei des Sozialwohnungsbaus. Die Architekten liefern simple und variable Grundrisse in einer farbenfrohen Hülle aus Klinker und Formstein. Ein Doppelhaus, das von Gestaltungsfreude zeugt


Text: Bokern, Anneke, Amsterdam


  • Bilderliste
    • Social Media Items Social Media Items

    Um die Massigkeit des langgestreckten Baukörpers optisch etwas zu mindern, ist er in einen fünf- und einen siebengeschossigen Teil gesplittet, die leicht gegeneinander versetzt stehen.
    Foto: Stijn Bollaert

    • Social Media Items Social Media Items
    Um die Massigkeit des langgestreckten Baukörpers optisch etwas zu mindern, ist er in einen fünf- und einen siebengeschossigen Teil gesplittet, die leicht gegeneinander versetzt stehen.

    Foto: Stijn Bollaert

  • Bilderliste
    • Social Media Items Social Media Items

    Foto: Stijn Bollaert

    • Social Media Items Social Media Items

    Foto: Stijn Bollaert

  • Bilderliste
    • Social Media Items Social Media Items

    Foto: Stijn Bollaert

    • Social Media Items Social Media Items

    Foto: Stijn Bollaert

  • Bilderliste
    • Social Media Items Social Media Items

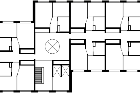
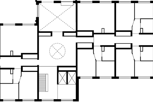
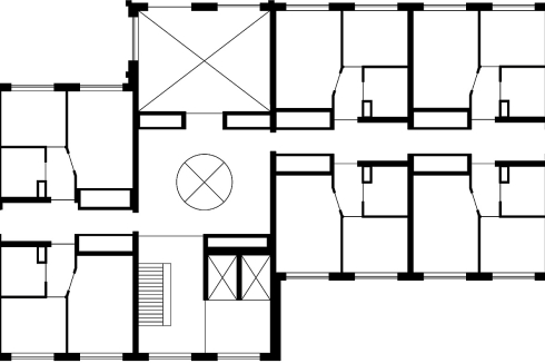
    Hinter dem Eingang befindet sich ein Verteilkorridor mit rundem Oberlicht, der zu den zentral in den beiden anschließenden Baukörpern gelegenen Fluren führt.
    Foto: Stijn Bollaert

    • Social Media Items Social Media Items
    Hinter dem Eingang befindet sich ein Verteilkorridor mit rundem Oberlicht, der zu den zentral in den beiden anschließenden Baukörpern gelegenen Fluren führt.

    Foto: Stijn Bollaert

  • Bilderliste
    • Social Media Items Social Media Items

    Foto: Stijn Bollaert

    • Social Media Items Social Media Items

    Foto: Stijn Bollaert

  • Bilderliste
    • Social Media Items Social Media Items

    Die Farbigkeit ist von Aldo Rossi inspiriert, könnte jedoch auch aus einem Wes Anderson-Film stammen. Die Ausformung der Fassadenelemente variiert. Z.B. sind die Fugen unten dunkel, oben hell; und die Knoten aus Beton schrumpfen mit zunehmender Höhe.
    Foto: Stijn Bollaert

    • Social Media Items Social Media Items
    Die Farbigkeit ist von Aldo Rossi inspiriert, könnte jedoch auch aus einem Wes Anderson-Film stammen. Die Ausformung der Fassadenelemente variiert. Z.B. sind die Fugen unten dunkel, oben hell; und die Knoten aus Beton schrumpfen mit zunehmender Höhe.

    Foto: Stijn Bollaert

  • Bilderliste
    • Social Media Items Social Media Items

    Foto: Stijn Bollaert

    • Social Media Items Social Media Items

    Foto: Stijn Bollaert

  • Bilderliste
    • Social Media Items Social Media Items

    • Social Media Items Social Media Items

  • Bilderliste
    • Social Media Items Social Media Items

    • Social Media Items Social Media Items

  • Bilderliste
    • Social Media Items Social Media Items

    Grundriss 6.OG

    • Social Media Items Social Media Items
    Grundriss 6.OG

  • Bilderliste
    • Social Media Items Social Media Items

    Grundriss 4.OG

    • Social Media Items Social Media Items
    Grundriss 4.OG

  • Bilderliste
    • Social Media Items Social Media Items

    Grundriss 1.OG

    • Social Media Items Social Media Items
    Grundriss 1.OG

  • Bilderliste
    • Social Media Items Social Media Items

    Grundriss EG

    • Social Media Items Social Media Items
    Grundriss EG

Im Werk des niederländischen Büros Monadnock spielen Referenzen aus der Architekturgeschichte eine wichtige Rolle. Das beginnt schon beim Büronamen: Der ist einem legendären, 1891 errichteten Bürohochhaus in Chicago mit 17 Geschossen und tragendem Backsteinmauerwerk entlehnt. Auch bei einem ihrer jüngsten Projekte, dem sozialen Wohnungsbau Volante in Hilversum, jonglieren die Architektinnen wieder einmal mit Verweisen – von Bruno Taut über Aldo van Eyck bis Aldo Rossi. Auf den ersten Blick fällt das Gebäude jedoch vor allem durch seine Farbgebung auf, die mit allen Klischees vom tristen, nüchternen sozialen Wohnungsbau bricht.
Volante steht im Südwesten Hilversums, in einem Viertel mit vier- bis fünfgeschossigen Zeilenwohnungsbauten aus der Nachkriegszeit. Auf dem Grundstück befand sich zuvor ein Pflegeheim aus den späten 1970er Jahren, das nun durch insgesamt fünf Neubauten auf einem Plateau über einer ebenerdigen Parkgarage ersetzt wurde. Dank eines Landschaftsentwurfs des Büros Hosper präsentieren sich die Seiten des Plateaus als üppig begrünter Hügel, in den Garageneinfahrten, Treppen und Rampen integriert sind. Zunächst wurden vier Wohnungsbauten an den Rändern des Plateaus realisiert. Als Schlussakt folgte in der Mitte des Terrains der Bau von Monadnock, der 56 soziale Mietwohnungen sowie 52 betreute Wohneinheiten der Stiftungen Amaris und WISjH beherbergt.
Um die Dimensionen des langgestreckten Gebäudes zu kaschieren, wurde es in zwei Bauteile unterteilt, die leicht zueinander versetzt angeordnet sind: eine westliche Hälfte mit fünf und eine östliche mit sieben Geschossen. Im Inneren liegen zu beiden Seiten eines Mittelkorridors Wohnungen mit standardisierten Grundrissen; einziger Unterschied sind breiter ausgeführte Türen und Durchgänge in den Pflegewohnungen. Da nach niederländischem Baurecht bei Wohnungen mit mehr als 50 Quadratmetern ein (kostspieliger) Außenraum erforderlich ist, liegt die Größe der Wohnungen in Volante knapp darunter. Immerhin ist ihr Achsmaß von 7,80 Metern für niederländische Verhältnisse recht großzügig und ermöglicht ein zukünftiges Zusammenfügen von Wohneinheiten.
Dass Sandor Naus von Monadnock dennoch von einem „Systembau mit Spaßfaktor“ spricht, liegt unter anderem an der Farbgebung. Während die umliegenden Neubauten mit ihren Fassaden aus beigefarbenem und dunkelbraunem Backstein recht brav gerieten, haben die Architekten bei Volante aus dem Vollen geschöpft. „Heutzutage herrscht ein Konsens, dass Architektur immer Ton in Ton daherkommen muss“, sagt Naus. „Das finden wir schade.“ Dementsprechend bedienten sich Monadnock einer Farbpalette, die ihren eigenen Angaben zufolge von Aldo Rossi inspiriert ist. Ein wenig fühlt man sich aber auch an die Filmwelten von Wes Anderson erinnert: schilfgrün glasierter und ockerfarbener Klinker sowie Fensterrahmen, -gitter und Erkerauskleidungen in zuckrigem Barbie-Rosa bestimmen das Bild; nur die beweglichen Fensterelemente sind dunkelgrau. Erstaunlicherweise war der Gestaltungsbeirat im Entwurfsprozess offenbar keine Hürde, sondern sogar eine Hilfe: „Sie haben uns sehr unterstützt – gerade, was den Rosaton betrifft“, meint Naus.
Man tut dem Gebäude jedoch unrecht, wenn man nur seine Farbgebung beachtet. Damit der lange, schmale Bau mit laibungslosen Fensteröffnungen keinen monotonen Anblick bietet, schenkten die Architekten den Fassaden viel Aufmerksamkeit. Sie werden von einem Raster aus Backsteinleisten gegliedert, hinter denen sich die Dehnungsfugen verstecken. Die Leisten bestehen aus abgerundeten, ockerfarbenen Formsteinen mit dekorativen Betonwerksteinen als Knotenpunkten. Schaut man genau hin, erkennt man subtile Unterschiede in der Gestaltung der Fassadenbereiche: So setzen sich die oberen beiden Geschosse des höheren Blocks durch die Verwendung von ockerfarbenem statt grünem Klinker ab, und dort fehlt auch die horizontale Lisene. Die Fenstergitterstäbe sind im ersten Stock dichter angeordnet als in den darüber liegenden Geschossen, und die Knotensteine sind in den unteren beiden Geschossen größer als darüber. Da obendrein das Mauerwerk der unteren Stockwerke dunkel verfugt ist, entsteht eine beinahe klassische Einteilung des Baus in Sockel, Schaft und Krone.
Viel Sorgfalt widmete man im Büro auch der Gestaltung der Stirnseiten, denn sie bilden die Gesichter des Hauses zur Straße. Sie bestehen aus gestapelten Erkern à la Bruno Taut. Darüber hocken jeweils zwei Betonblöcke auf dem Dach, die man zunächst für Schornsteine halten könnte, jedoch reine Ornamente sind. „Ohne sie fühlten sich die Fassaden irgendwie kahl an“, erklärt Naus.
Nähert man sich dem Gelände von Norden, erblickt man dagegen zwischen den beiden Nachbarbauten hindurch als Erstes das Eingangsportal. Es befindet sich an der Schnittstelle der beiden Bauteile, faltet sich um die Seite des niedrigeren Blocks und will mit Fassaden aus gelb glasierten Klinkern, nach oben abgeschlossen durch eine ebenfalls gelbe Balustrade, ganz zweifellos Aufmerksamkeit erregen. Zwei quadratische, zwei runde und eine dreieckige Fensteröffnung durchbrechen das Mauerwerk. „Wir spielen einfach gerne mit geometrischen Formen. Nicht alles muss immer eine rationale Begründung haben“, sagt Naus. Im Inneren findet man sich in einer doppelt hohen Halle wieder, deren Farbpalette von einem Sockel aus beigefarbenen Kacheln, gelb verputzten Wänden und einem kornblumenblauen Bänkchen, ergänzt durch violette Bodenfliesen, bestimmt wird. Dahinter liegt eine zweite Halle, in deren Mitte sich ein runder, viergeschossiger Luftraum öffnet, gesäumt von wiederum rosafarbenen Geländern. Von dort aus erstrecken sich die Mittelflure in beide Richtungen und erschließen die Wohnungen. Aufweitungen bringen Struktur in die langen Gänge, die mit preisgünstigen, praktischen Materialien ausgekleidet sind: Linoleumboden und Glasfasertapete samt Eckenschoner, aber natürlich in ausdrucksstarken Farben, von Vanillegelb über Rosé bis Apfelgrün. Sogar das Fluchttreppenhaus ist in Rosa getaucht.
Auf den ersten Blick kann man Volante als verspäteten Vertreter der Postmoderne abtun. Doch ob pastellige Farbpalette und geometrische Formen dem eigenen Geschmack entsprechen oder nicht: Das Projekt zeugt von einer Freude am Entwerfen, die im sozialen Wohnungsbau heute nur selten zu finden ist.



Fakten
Architekten Monadnock, Rotterdam
Adresse Van Ghentlaan, 1215 PP Hilversum, Niederlande


aus Bauwelt 24.2025
Artikel als pdf

0 Kommentare


loading
x

25.2025

Das aktuelle Heft

Bauwelt Newsletter

Das Wichtigste der Woche. Dazu: aktuelle Jobangebote, Auslobungen und Termine. Immer freitags – kostenlos und jederzeit wieder kündbar.