Eine lockere Familie
Die Bremer Überseestadt ist eins der größten städtebaulichen Entwicklungsgebiete Europas. Auf dem Gelände einer ehemaligen Reismühle wird, den Hafen im Blick, ein Wohnquartier mit Fokus auf Wohnen im Alter geplant. Mit betreutem und eigenständigem Wohnen soll es neue Standards setzen.
Text: Kraft, Caroline, Berlin
Eine lockere Familie
Die Bremer Überseestadt ist eins der größten städtebaulichen Entwicklungsgebiete Europas. Auf dem Gelände einer ehemaligen Reismühle wird, den Hafen im Blick, ein Wohnquartier mit Fokus auf Wohnen im Alter geplant. Mit betreutem und eigenständigem Wohnen soll es neue Standards setzen.
Text: Kraft, Caroline, Berlin
Bremen, voraussichtlich 2029. Suchte man einen stadtnahen Wohnsitz fürs Älterwerden direkt an der Weser, müsste man etwas Glück und in 70 Prozent der Fälle sicher auch das nötige Kapital haben. Auf gängigen Immobilienportalen stünde etwas wie „Wohnen mit Weitblick – selbstbestimmt, alleine oder betreut in Bremens neuer Toplage“, „Lebensqualität, Tagespflege, Wellness, Wärmepumpe“. Man müsste zufrieden sein, bekäme man eine der 300 Wohnungen, von denen, Stand jetzt, 30 Prozent gefördert sein sollen. Bis Mitte der 2030er werden laut Statistischem Bundesamt mindestens 20 Millionen Menschen 67 oder älter sein. Wie wir wohnen, muss sich daran anpassen, allein, um den Pflegenotstand wenigstens etwas zu entlasten.
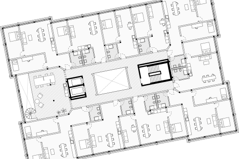
Es ist eine gute Geschäftsidee – und natürlich edel – für die alternde Bevölkerung zu bauen. Die Bremer Specht Gruppe, laut eigener AussagePionierin, tut dies seit 1988: Das Haus Rotbuche in Bremen teilte das Immobilienunternehmen wie ein Mehrfamilienhaus in unterschiedliche Partei-en auf, wodurch sich mehrere Investoren an der Kapitalanlage beteiligen konnten. Seitdem wirbt der Entwickler mit der Realisierung von über 150 Pflegeimmobilien. In der Bremer Überseestadt, einen Steinwurf entfernt vom Kellogg-Areal (Wir berichteten: Bauwelt 23.25), konnte Specht einen dicken Fisch an die Wasserkante ziehen – oder, wie es auf der Unternehmenswebsite heißt: „Lage, Lage, Lage“. In diesem stark umkämpften Entwicklungsgebiet befindet sich das Gelände der ehemaligen Rickmers Reismühle. Das historische Hafengebiet wird seit 2000 zu einem neuen Stadtquartier entwickelt. Das Areal, das inzwischen einer Tochtergesellschaft von Specht, der Parkquartier Weserinsel GmbH (PQW) gehört, war lange Zeit als Werft genutzt, bevor es in den 1980ern zur Reismühle wurde. Nachdem der Standort zeitweise weltweit führend in der Reisverarbeitung war, sorgten dennoch Strukturwandel der Hafenwirtschaft und diverse globale Krisen dafür, dass er an Bedeutung verlor – bis zur Insolvenzanmeldung. Inzwischen wurden Mikrowellen -und Fertigprodukte-Sparte von einem italienischen Lebensmittelproduzenten gerettet. Die Reismühle, lange nicht mehr auf das davorliegende Gewässer angewiesen, wurde frei. Specht warf die Angel aus, mit PQW verständig-te sich das Unternehmen 2020 darauf, hier Wohnungsbau umzusetzen. Die Stadt verzichtete dafür auf ihr Vorkaufsrecht.
2019 entwickelten die Berliner Smaq mit ihren Landschaftsarchitekturkollegen Man Made Land einen Rahmenplan für die Überseeinsel, auf dessen Ergebnis die Setzung der vier geforderten Neubaukörper fußt: „wie eine lockere Familie“, so „zueinander verdreht, [dass] ein spielerisches Bild entsteht.“ PQW lobte 2024 einen hochbaulichen Realisierungswettbewerb aus, zu dem 13 Architekturbüros eingeladen wurden – eines davon konnte die Architektenkammer Bremen als „Wildcard“ ins Verfahren schicken. Zunächst war der Plan, pro Haus ein Büro zu beauftragen, was schlussendlich nicht umgesetzt wurde.
Neben Gebäudestellung und -erschließung stand das Quartierskonzept fest, „der Footprint der Punkthäuser [konnte] im Rahmen gesetzter Baufelder noch auf den Prüfstand gestellt und variiert werden.“ Die Sockelgeschosse mussten hochwasserfest sein. Im Inneren der vier „Daltons“, wie die in der Größe variierenden Wohnhochhäuser im Wettbewerb getauft wurden, waren öffentliche Nutzungen im den Sockel und ansonsten „Licht, Luft und Teilhabe“ gefordert. Die Architektur sollte bettlägerige Menschen nicht hindern, weitestmöglich am Leben teilhaben zu können. Die Auslobung legte eine Wohnnutzung von 80 Prozent fest, davon etwa 60 für Ältere, nochmal unterteilt in betreutes Wohnen inklusive Service (45 Prozent) und eigenständiges Wohnen. Etwa 12 Prozent sollen frei finanziert sein.
Das vergleichsweise junge Architekturbüro Felgendreher Olfs Köchling mit Bremer Wurzeln konnte die Herausforderung meistern. Mit „kompakten, einander ähnlichen und gleichzeitig individualisierten Baukörpern“ entwarf das Team ein Gesicht für die vier Brüder Dalton. Nun ist zu hoffen, dass auch ihr Entwickler seine Ziele für das Wohnquartier umsetzen kann.
Einladungswettbewerb
1. Preis (42.000 Euro) Felgendreher Olfs Köchling Architekten, Berlin
Ein 3. Preis (21.000 Euro) SMAQ – architecture urbanism research, Berlin
Ein 3. Preis (21.000 Euro) Studio Corso, München
1. Preis (42.000 Euro) Felgendreher Olfs Köchling Architekten, Berlin
Ein 3. Preis (21.000 Euro) SMAQ – architecture urbanism research, Berlin
Ein 3. Preis (21.000 Euro) Studio Corso, München
Alle Teilnehmenden erhielten ein Honorar von 7500 Euro.
Auslober
ParkQuartier Weserinsel GmbH, Bremen in Kooperation mit der Senatorin für Bau, Mobilität und Stadtentwicklung der Freien Hansestadt Bremen
ParkQuartier Weserinsel GmbH, Bremen in Kooperation mit der Senatorin für Bau, Mobilität und Stadtentwicklung der Freien Hansestadt Bremen
Sachpreisjury
Christoph Grafe, Karin Kellner, Karin Loosen, Jörn Walter (Vorsitz), Iris Reuther
Christoph Grafe, Karin Kellner, Karin Loosen, Jörn Walter (Vorsitz), Iris Reuther
Koordination
BPW Stadtplanung, Bremen
BPW Stadtplanung, Bremen







0 Kommentare