Die Stadt ohne Stadtmuseum
Seit über zwei Jahrzehnten hat Schwerin kein Stadtmuseum mehr – schwer vorstellbar. Inmitten der Altstadt, an einem Ort, der kaum zentraler liegen könnte, soll nun eines entstehen.
Text: Demirovic, Marko, Willingen
Die Stadt ohne Stadtmuseum
Seit über zwei Jahrzehnten hat Schwerin kein Stadtmuseum mehr – schwer vorstellbar. Inmitten der Altstadt, an einem Ort, der kaum zentraler liegen könnte, soll nun eines entstehen.
Text: Demirovic, Marko, Willingen
Schwerins Geschichte reicht bis in die Zeit seiner slawischen Besiedlung zurück. Der frühe Name „Zuarina“ – ein Hinweis auf Land mit wildem Tierbestand – verweist auf eine Zeit, in der topografische Gegebenheiten noch Herrschaftszeichen waren. Im Jahr 1018 wird eine slawische Burganlage an dieser Stelle erstmals urkundlichgenannt, um 1164 erhielt sie deutsche Stadtrechte. Im Laufe der Jahrhunderte entwickelte sich Schwerin zur Residenzstadt von Mecklenburg-Schwerin. Im 19. Jahrhundert erfuhr die Stadt mit der Industrialisierung einschneidende Veränderungen. Nach dem Zweiten Weltkrieg blieb ihr historischer Kern in wesentlichen Teilen erhalten. In der DDR-Zeit war Schwerin Bezirkshauptstadt, nach der Wende wurde sie zur Landeshauptstadt. Spätestens seit 2024, mit der Anerkennung des Residenzensembles als UNESCO-Welterbe, hat Schwerin den kulturpolitischen Auftrag bekommen, ihre Geschichte zu zeigen und für diese auch Raum anzubieten.
Dieser soll nun wieder entstehen: in Form eines neuen Museumbaus, der nicht nur Sammlung, sondern auch ein Informationszentrum wird – ein Ort, der die Vergangenheit Schwerins auffaltet. Die ehemalige stadtgeschichtliche Sammlung im Stadtarchiv war von 1991 bis zu ihrer Schließung im Jahr 2005 öffentlich zugänglich. Der kürzlich entschiedene Wettbewerb war ein Ergebnis langjähriger Wünsche; die Planungen laufen bereits seit 2021.
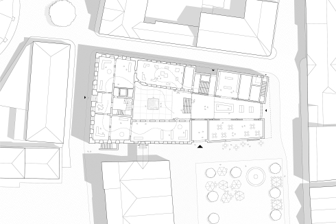
Das Wettbewerbsareal, derzeit ein Parkplatz, liegt eingebettet zwischen dem Schweriner Dom, dem Markt und dem Rathaus. Der angrenzende Schlachtermarkt, im 19. Jahrhundert durch Brand und Abriss geformt, ist heute, umrahmt von niedriger drei- bis viergeschossiger Fachwerkbebauung und der Rückseite des altstädtischen Rathauses, nicht aus dem Altstadtgefüge wegzudenken. Das Museum soll nun eine neue, prägende Rolle übernehmen. Neben dieser Neubauaufgabe soll ein bestehendes ehemaliges Wohnhaus als funktionales Pendant zum Neubau denkmalgerecht zum Verwaltungsbau des Museums werden. Es ist ein schmaler, barocker Bau mit aufwändigen Gesimsen und historischem Gewölbekeller. Heute erfährt es die Nutzung als pragmatische Erweiterung des Rathauses, mit ihm verbunden durch einen Brückenbau.
Im März 2025 lobte die Stadt den Wettbewerb aus, mit klaren Erwartungen an städtebauliche und gestalterische Qualität. Gesucht war ein Bau, der sich im Dialog mit dem Bestand nicht nur behauptet, sondern eine räumliche Geste manifestiert: mit prägnantem Ausdruck, überzeugender Figur und klarem Übergang. Der Neubau, so formulierte es die Auslobung, sei dabei „keinesfalls ohne den Altbau zu denken“.
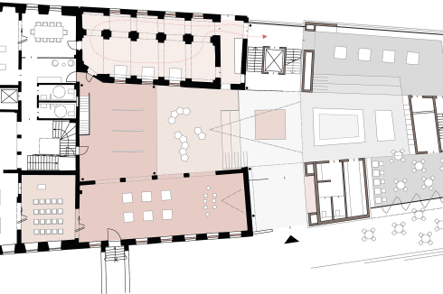
So unterschiedlich die Entwurfsansätze waren – sie ähneln sich absurd: streng in der Achse, eng an den Bestand gerückt, mit einem großformatigen Fenster zum Schlachtermarkt als kollektives Motiv. Als hätte eine Telepathie der Fassadenöffnungen die Köpfe der Planenden miteinander verbunden, wurde die Aktivierung des Platzes fast ausnahmslos über diese gläserne Geste inszeniert. Der Impuls ist mehr konventionell als mutig. Zwischen Giebeln, Loggia und Blendfassade kristallisierte sich die Entscheidung für eine Architektur heraus, die nicht modisch, sondern vertraut wirkt. Sie ist altstadtkompatibel und nicht ohne Eleganz. Nahezu alle Entwürfe greifen außerdem auf das klassische Repertoire musealer Typologien zurück. Atrien, Höfe und gerichtete Blickachsen sind vertraute Mittel, die Ordnung stiften sollen. Nur eine Rotunde fehlte, wäre aber auch unzeitgemäß.
Schwerin hat ein Museum gebraucht und wird noch mehr bekommen: Der Bau vereint auch das Standesamt, ein Informationszentrum, eine öffentliche Sanitäranlage und ein Café. Diese funktionale Vielstimmigkeit steht im Zeichen der Dauerhaftigkeit.
Offener Realisierungswettbewerb
1. Preis (37.000 Euro) Jan Wiese Architekten, Berlin
Ein 2. Preis (25.500 Euro) pape + pape architekten, Kassel
Ein 2. Preis (25.500 Euro) Büro Wortmann Gork Architekten, Berlin; NOTO Basista Becker Jansen Architekten, Hamburg
4. Preis (14.000 Euro) rw+ Gesellschaft von Architekten, Berlin; Schöne neue Welt Ingenieure, Berlin
5. Preis (12.000 Euro) GRUBERT VERHÜLSDONK Architekten, Berlin
Anerkennung FORMATION A, Berlin
Anerkennung Mulder Zonderland, Zürich
1. Preis (37.000 Euro) Jan Wiese Architekten, Berlin
Ein 2. Preis (25.500 Euro) pape + pape architekten, Kassel
Ein 2. Preis (25.500 Euro) Büro Wortmann Gork Architekten, Berlin; NOTO Basista Becker Jansen Architekten, Hamburg
4. Preis (14.000 Euro) rw+ Gesellschaft von Architekten, Berlin; Schöne neue Welt Ingenieure, Berlin
5. Preis (12.000 Euro) GRUBERT VERHÜLSDONK Architekten, Berlin
Anerkennung FORMATION A, Berlin
Anerkennung Mulder Zonderland, Zürich
Ausloberin
Landeshauptstadt Schwerin
Landeshauptstadt Schwerin
Jury
Joedicke Joachim, Kirsch Beate, Penell Markus, Randecker Albrecht, Springer Jörg (Vorsitz), Staab Volker, Tophof Julia
Joedicke Joachim, Kirsch Beate, Penell Markus, Randecker Albrecht, Springer Jörg (Vorsitz), Staab Volker, Tophof Julia
Verfahrensbetreuung
büro luchterhandt & partner Luchterhandt Senger Stadtplaner, Hamburg
büro luchterhandt & partner Luchterhandt Senger Stadtplaner, Hamburg







0 Kommentare