Bauwelt

Wohngebäude in Bordeaux-Brazza


Jeder sollte sein Zuhause selbst in die Hand nehmen dürfen: Dieser Ansporn trieb David Pradel und Collectif Encore beim Bau eines Wohngebäudes in Bordeaux-Brazza. Die Architekten haben mit einfachen konstruktiven Mitteln und bestechend schlichten Grundrissen gearbeitet, um den Nutzerinnen Freiraum zur Ausgestaltung der eigenen Lebenswelt zu bieten. Entstanden ist ein Komplex aus zwei dreiteiligen Gebäuden, die Licht, Luft und Liberté zelebrieren.


Text: Quinton, Maryse, Nantes


  • Bilderliste
    • Social Media Items Social Media Items

    Foto: David Pradel

    • Social Media Items Social Media Items

    Foto: David Pradel

  • Bilderliste
    • Social Media Items Social Media Items

    Die Wohnungen sind mit einem Balkon nach Süden ...
    Foto: David Pradel

    • Social Media Items Social Media Items
    Die Wohnungen sind mit einem Balkon nach Süden ...

    Foto: David Pradel

  • Bilderliste
    • Social Media Items Social Media Items

    ... und einer Laube nebst Abstellraum im Norden ausgestattet. Für fast alle Wohnungen sind beide Freiräume als Zugang nutzbar.
    Foto: David Pradel

    • Social Media Items Social Media Items
    ... und einer Laube nebst Abstellraum im Norden ausgestattet. Für fast alle Wohnungen sind beide Freiräume als Zugang nutzbar.

    Foto: David Pradel

  • Bilderliste
    • Social Media Items Social Media Items

    Foto: David Pradel

    • Social Media Items Social Media Items

    Foto: David Pradel

  • Bilderliste
    • Social Media Items Social Media Items

    Foto: David Pradel

    • Social Media Items Social Media Items

    Foto: David Pradel

  • Bilderliste
    • Social Media Items Social Media Items

    Foto: David Pradel

    • Social Media Items Social Media Items

    Foto: David Pradel

  • Bilderliste
    • Social Media Items Social Media Items

    Foto: David Pradel

    • Social Media Items Social Media Items

    Foto: David Pradel

  • Bilderliste
    • Social Media Items Social Media Items

    Foto: David Pradel

    • Social Media Items Social Media Items

    Foto: David Pradel

  • Bilderliste
    • Social Media Items Social Media Items

    Jeder Wohnung ist ein durchgesteckter, langer Raum eigen. Je nach Größe werden diesem zusätzliche Räume zugeschaltet. Einzig die Versorgungsanschlüsse machen Vorgaben. Laubengang und Balkon erweiteren den privaten Bereich nach außen.
    Foto: David Pradel

    • Social Media Items Social Media Items
    Jeder Wohnung ist ein durchgesteckter, langer Raum eigen. Je nach Größe werden diesem zusätzliche Räume zugeschaltet. Einzig die Versorgungsanschlüsse machen Vorgaben. Laubengang und Balkon erweiteren den privaten Bereich nach außen.

    Foto: David Pradel

  • Bilderliste
    • Social Media Items Social Media Items

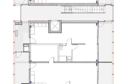
    Die über zwischengeschobene, offene Treppen erschlossenen Häuser lassen sich in Konstellationen vom Studio bis zur 5-Zimmer-Wohnung unterteilen.

    • Social Media Items Social Media Items
    Die über zwischengeschobene, offene Treppen erschlossenen Häuser lassen sich in Konstellationen vom Studio bis zur 5-Zimmer-Wohnung unterteilen.

  • Bilderliste
    • Social Media Items Social Media Items

    • Social Media Items Social Media Items

  • Bilderliste
    • Social Media Items Social Media Items

    • Social Media Items Social Media Items

Der soziale Wohnungsbau durchlebt auch in Frankreich schwere Zeiten. Nicht nur die Krise im Immobiliensektor hat ihn hart getroffen, sondern auch die politische Instabilität. Die Nachfrage nach Wohnraum ist ungebrochen hoch, was insbesondere in den Ballungszentren des Landes zu einer starken...
Weiterlesen



Fakten
Architekten Collectif Encore und David Pradel, Bordeaux
Adresse 14 Rue Jeanne Lanvin, 33100 Bordeaux, Frankreich


aus Bauwelt 24.2025

0 Kommentare


loading
x

25.2025

Das aktuelle Heft

Bauwelt Newsletter

Das Wichtigste der Woche. Dazu: aktuelle Jobangebote, Auslobungen und Termine. Immer freitags – kostenlos und jederzeit wieder kündbar.